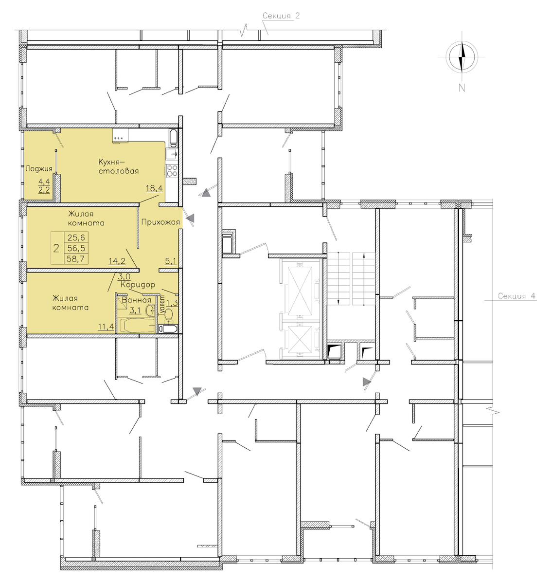
2-комнатная
58.3 м2
6 509 024 руб.
Ипотека
от 19 474
руб.
11 человек
смотрели эту квартиру за 24 часа
Посмотрите квартиру на других этажах
Откройте для себя квартиру вашей мечты!
Калькулятор ипотеки













