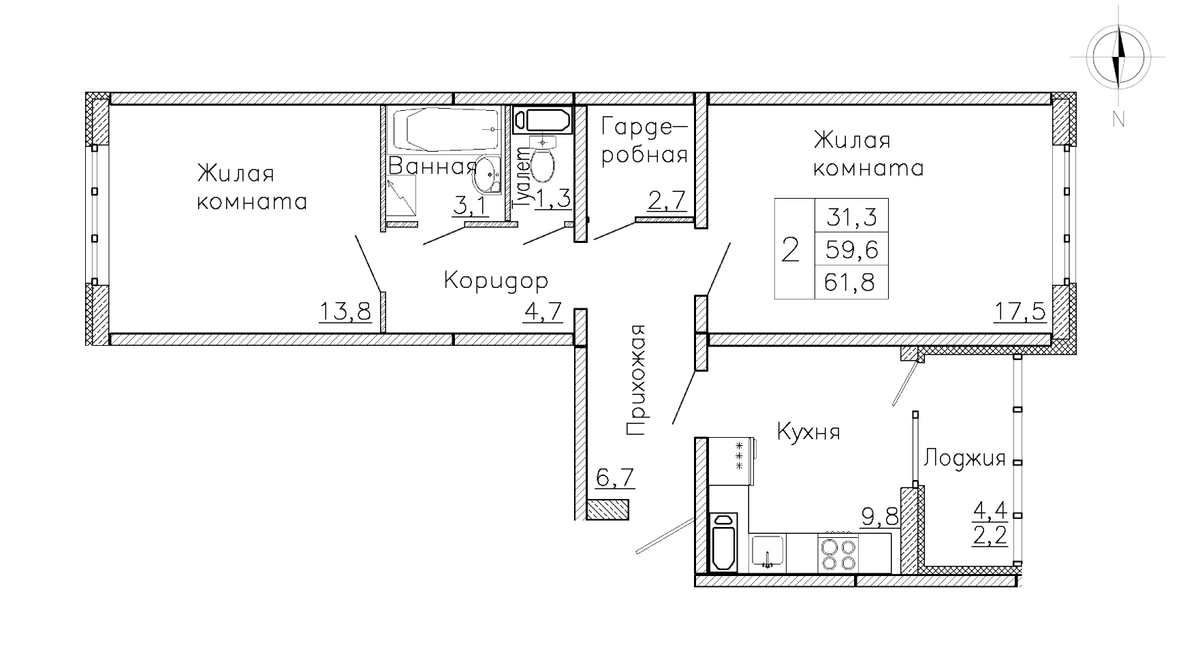
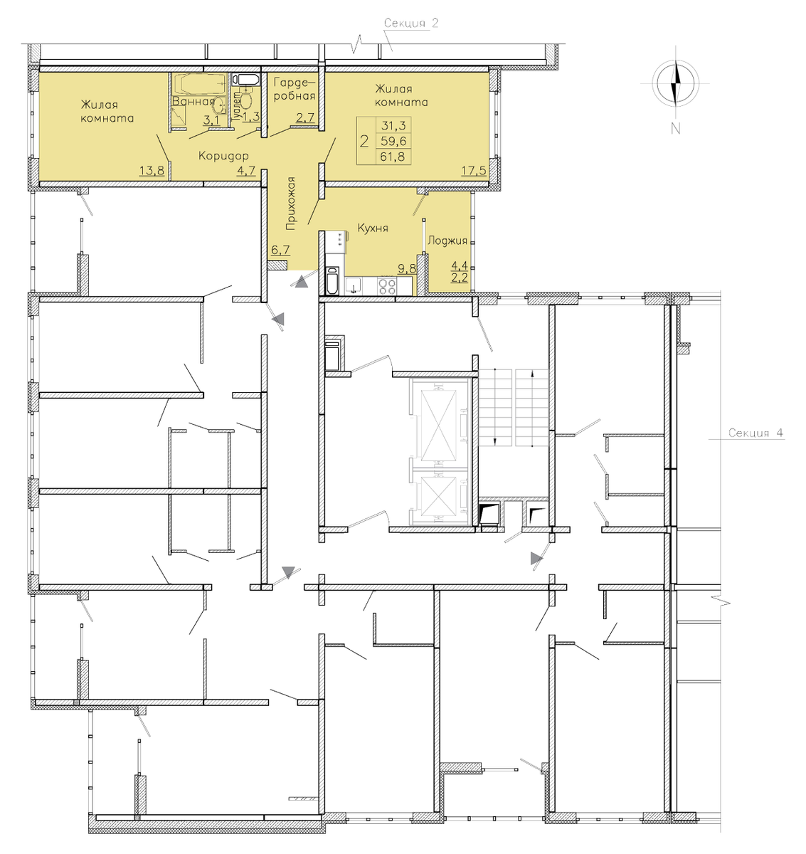
2-комнатная
61.8 м2
6 899 788 руб.
Ипотека
от 20 643
руб.
3 человекa
смотрели эту квартиру за 24 часа
Посмотрите квартиру на других этажах
Откройте для себя квартиру вашей мечты!
Калькулятор ипотеки















