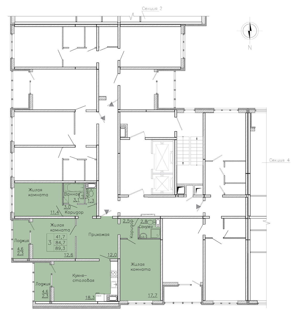
3-комнатная
88.9 м2
9 392 024 руб.
Ипотека
от 28 099
руб.
5 человек
смотрели эту квартиру за 24 часа
Посмотрите квартиру на других этажах
Откройте для себя квартиру вашей мечты!
Калькулятор ипотеки












