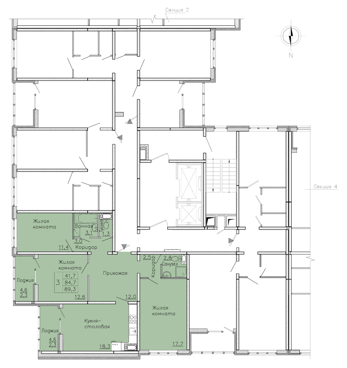
3-комнатная
89.3 м2
9 434 282 руб.
Ипотека
от 28 226
руб.
9 человек
смотрели эту квартиру за 24 часа
Посмотрите квартиру на других этажах
Откройте для себя квартиру вашей мечты!
Калькулятор ипотеки












