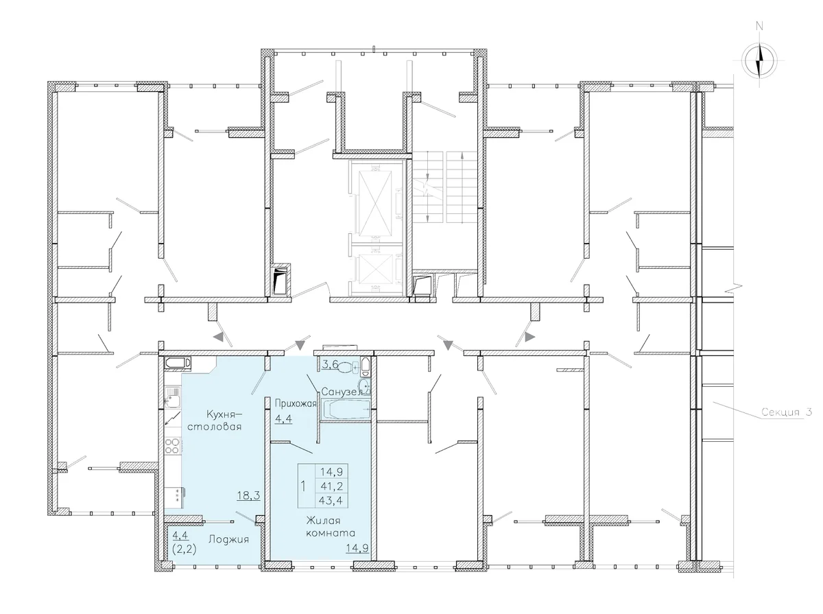
1-комнатная
43.3 м2
4 885 259 руб.
Ипотека
от 14 616
руб.
Откройте для себя квартиру вашей мечты!
Калькулятор ипотеки


















