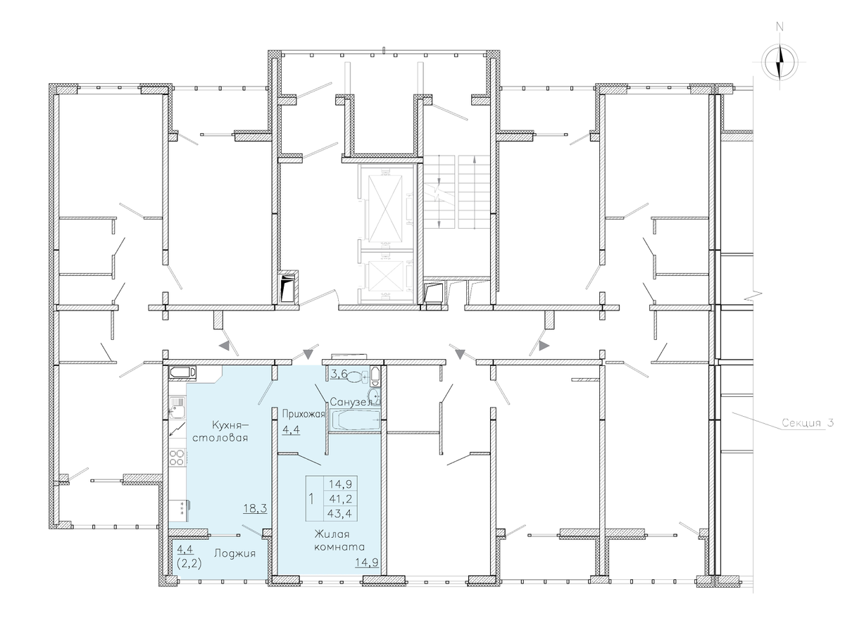
1-комнатная
43.4 м2
4 845 482 руб.
4 118 660 руб.
11 человек
смотрели эту квартиру за 24 часа
Посмотрите квартиру на других этажах
2 эт.
43.4 м2
4 118 660 руб.
3 эт.
43.4 м2
4 118 660 руб.
вы смотрите
4 эт.
43.4 м2
4 118 660 руб.
5 эт.
43.4 м2
4 118 660 руб.
Откройте для себя квартиру вашей мечты!







Калькулятор ипотеки
Похожие планировки
1 / 2



