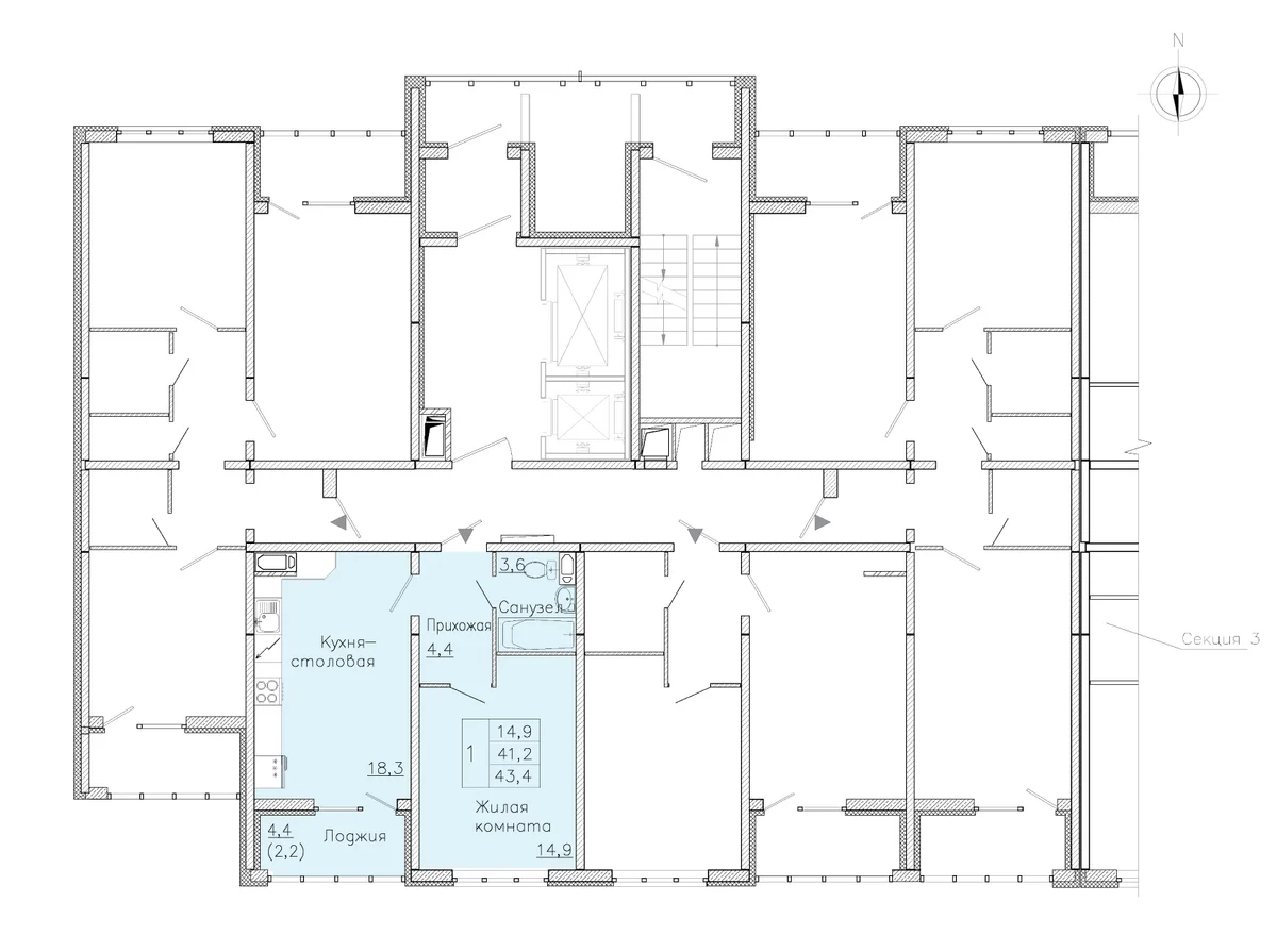
1-комнатная
43.4 м2
4 896 541 руб.
Ипотека
от 14 650
руб.
Откройте для себя квартиру вашей мечты!
Калькулятор ипотеки


















