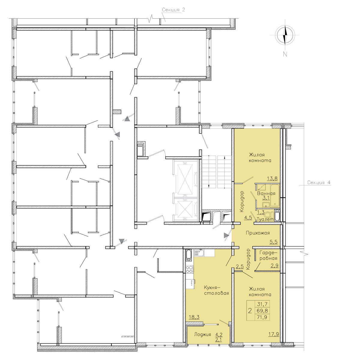
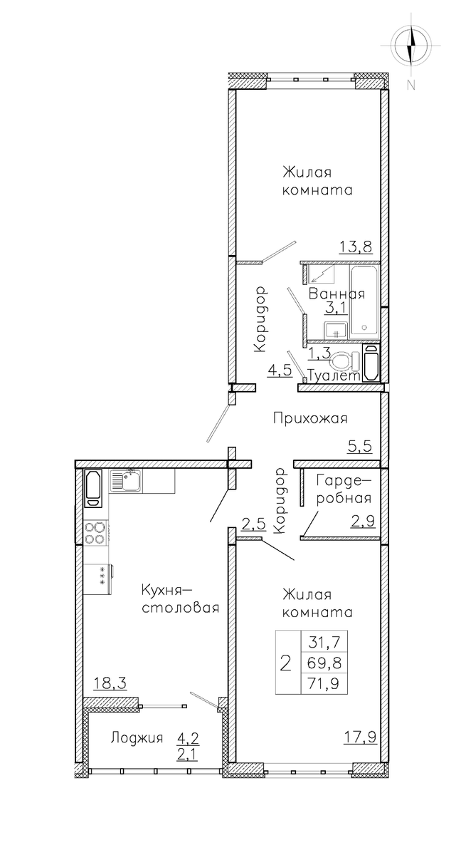
2-комнатная
71.9 м2
8 027 424 руб.
Ипотека
от 24 017
руб.
3 человекa
смотрели эту квартиру за 24 часа
Посмотрите квартиру на других этажах
Откройте для себя квартиру вашей мечты!
Калькулятор ипотеки











